
專業級私家影院從選擇視聽空間開始,嚴格按照影音技術的最高標準,精選專業高端器材,綜合運用建筑聲學、美學、光學和數字影音技術的最新成果,苛求細節的設計,力求完美。在設計上的匠心獨運,在配置上也會逐個篩選,無論是播放電影、演唱會、音樂會,還是聆聽HI-FI立體聲音樂,皆臻至完美音效,強烈的現場感、極多的細節、豐富的音樂感、澎湃的低頻讓人如臨現場。
專業級的家庭影院對聲學環境有較高的要求,需要獨立房間,長寬比例需遵循聲學要求,為確保影院效果,建議房間面積約為25m2--80m2,層高為3m以上 。
實現功能
-
藍光電影
Blu ray
-
聽音樂
Music
-
電視節目
TV
-
網絡播放
Network play
-
游戲
Game
-
卡拉OK
Karaoke

藍光電影
Blu ray

聽音樂
Music

電視節目
TV

網絡播放
Network play

游戲
Game

卡拉OK
Karaoke
操作方式
-
搖控器控制(未配置)
-
設備自帶APP控制(未配置)
-
中央智能控制
中央智能控制
The central intelligence control
能過中央控制設備將所有影音設備和其它環境設備,如燈光、窗簾、空調、新風等全部集成控制。并實現一鍵式模式化操作。比如:進入房間只需選擇電影模式,所有設備全部按程序設定自動開啟并達到最佳工作狀態,直接坐享最完美的效果體驗。
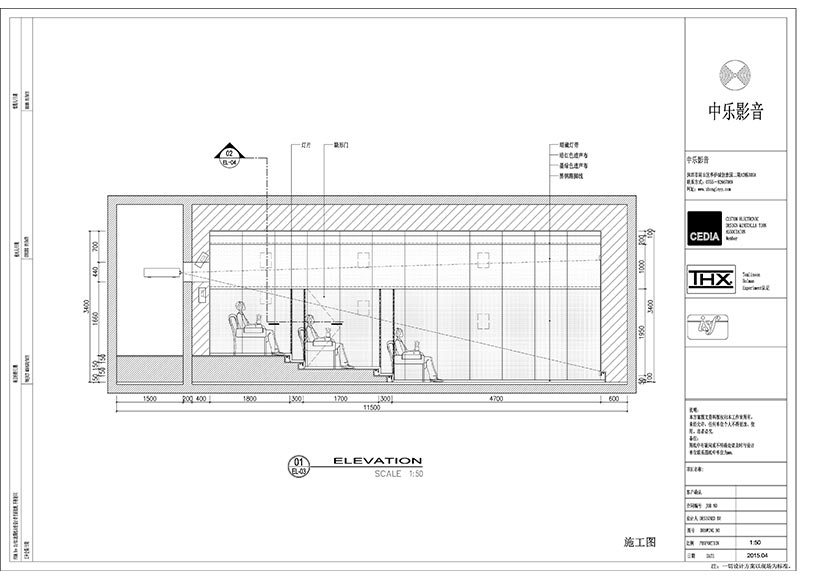
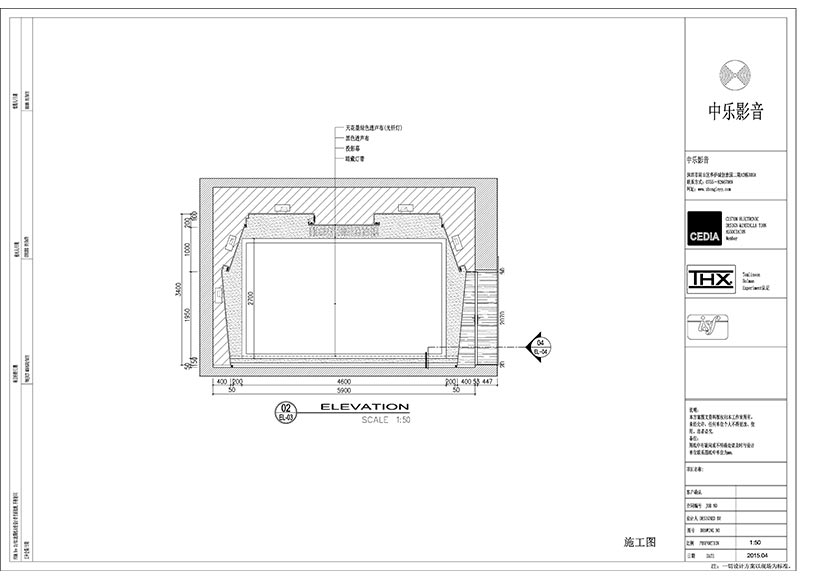
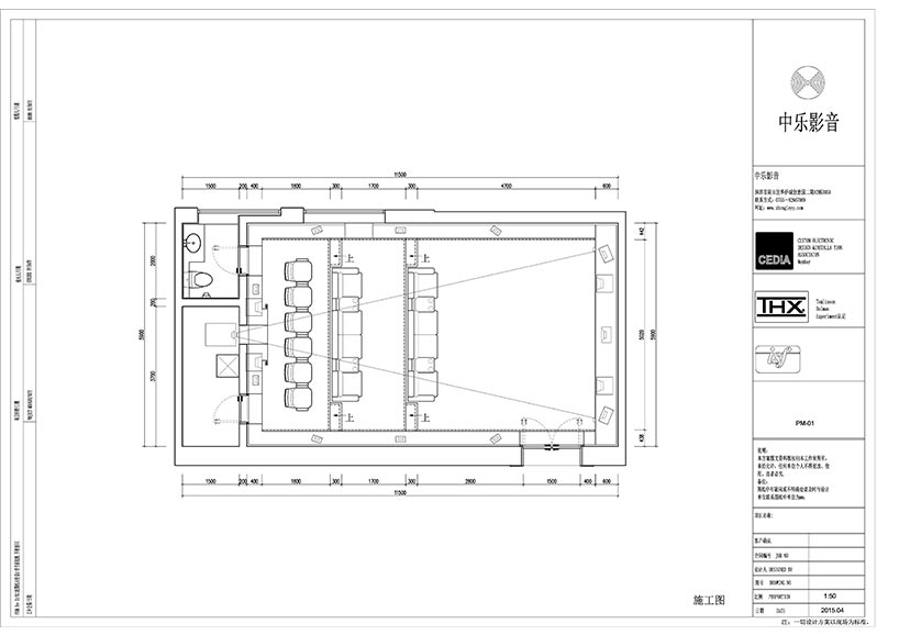
示例圖紙
-

- (平面布局)
-

- (平面布局)
-

- (平面布局)
-

- (平面布局)
-

- (平面布局)
-

- (設備系統框架圖)
設備選型建議


