
適合對音樂和電影有一定的喜好,又不是很專業,對音效要求有一定的標準和追求的客戶,價格適中,影音效果非常好,同樣具有很高的性價比。這類影院定制方案,在精選影音設備的基礎上,配合縝密而系統的空間聲學設計和裝修,輕易獲取理想化的視聽效果,能夠達到嚴格意義上的私家影院。
入興趣愛好級的私家影院建議有一個獨立空間和相對良好的聲學環境,才能最大程度的發揮出影音器材的性能。理想的房型比例,房間面積約為20m2--35m2。若房間面積偏小,需在聲場的構建環節多費些心思和加以設計,以確保影院的效果。
實現功能
-
藍光電影
Blu ray
-
聽音樂
Music
-
電視節目
TV
-
網絡播放
Network play
-
游戲
Game
-
卡拉OK
Karaoke

藍光電影
Blu ray

聽音樂
Music

電視節目
TV

網絡播放
Network play

游戲
Game

卡拉OK
Karaoke
操作方式
-
搖控器控制
-
設備自帶APP控制
-
中央智能控制
遙控器控制
Remote control
每臺設備有1個搖控器分別控制,無需增加成本且穩定。適合小系統,設備不多或使用者熟悉設備系統的操作和應用。
設備自帶APP控制
APP control equipment
部分影音設備有自帶的APP無線控制軟件,如功放、藍光DVD和其它網絡播放器。適合小系統或對網絡系統熟悉的用戶使用。
中央智能控制
The central intelligence control
能過中央控制設備將所有影音設備和其它環境設備,如燈光、窗簾、空調、新風等全部集成控制。并實現一鍵式模式化操作。比如:進入房間只需選擇電影模式,所有設備全部按程序設定自動開啟并達到最佳工作狀態,直接坐享最完美的效果體驗。
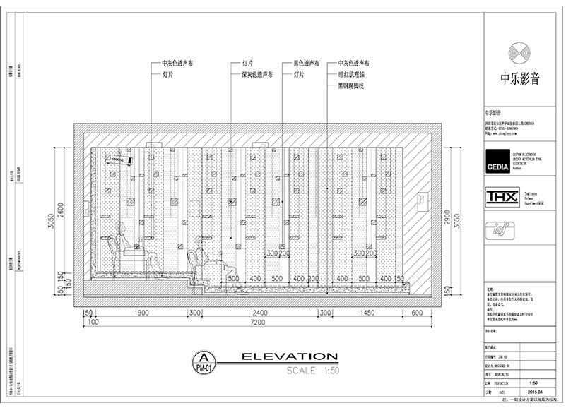
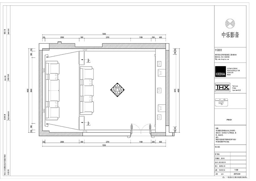
示例圖紙
-

- (平面布局)
-

- (平面布局)
-

- (平面布局)
-

- (平面布局)
-

- (平面布局)
-

- (設備系統框架圖)
設備選型建議


