中樂案例展示 > 返回
遠不止身臨其境!汕尾AURO 3D影院案例
如今,越來越多的人,在事業打拼多年后,揮別城市的水泥森林,以及城市生活所帶有的那種無孔不入的焦慮感,選擇回到自己美麗的鄉土。著名田園詩人和辭賦家陶淵明有一句詩詞,“久在樊籠里,復得返自然”,就是對這種生活和美好境界的最好描述。我們這位汕尾的知名企業家客戶正是向往這樣的生活和境界,在打拼多年,事業有成后,在遠離市區外,群山腳下,小橋流水邊,建了一處8000多平米的大莊園,來享受自己的成功成果,安享天倫之樂。而世間上最珍貴的情感和快樂,莫過于與親友和家人相伴,享受人生平淡而又精彩的繽紛時光,這位客戶也是位非常熱愛音樂,很有品位的客戶,之前由于工作太忙,少有時間享受美妙的音樂和震撼的電影,所以現在客戶在莊園內單獨建設了一間100平米的影音室,希望在這處私人空間里滿足家庭聚會娛樂,電影音樂欣賞,貴賓接待等。同時每個功能都必須達到世界頂級水準。
由于汕尾那邊沒有找到能承接這種頂級影院的音響公司,所以客戶輾轉來到深圳物色,深圳這邊具備前期整體設計,制定方案,施工指導協助,后期安裝和調試等全方位一體化解決的公司也是屈指可數,后來也是通過朋友介紹,客戶來到中樂,在多方考察和比量后,客戶最終還是選擇了中樂。隨后進入設計和施工階段,由于客戶比較追求完美,在意細節,對影院的設計感,氛圍感,體驗感,施工階段的每一個環節,音視頻的最終效果等要求極為苛刻,所以中樂派出了多位工程師長期駐扎在汕尾工地,親自參與整個影院建造的監工和配合,總經理也是每一個周期都會抽時間到達現場檢驗和指導,為期大半年左右影院才徹底竣工,后又多次安排資深工程師上門調試。當工程最終交付,進入影院體驗時那一刻,業主對影院的整體效果極為滿意,自己都表示贊不絕口!沒有一處細節需要調整和返工。在試聽完Auro 3D沉浸式震撼音效后,業主更是自豪的表示這可能是汕尾地區的第一家頂級私家影院,說“以后不出門也有得玩了”!之后業主將莊園內的背景音樂工程以及所有音視頻項目,和其工廠內的會議系統,廣播系統均交于了中樂,至今業主與中樂總經理仍保持著親密聯系,交流音樂和電影等,多次邀請總經理到其家中做客。
影院最終實拍效果:




試聽環境基本情況簡介
地理位置:中國廣東汕尾
整體資金投入:
影音系統200萬元,影音室裝修和沙發椅約80萬元,總計280萬元
視聽室空間信息:
自建獨立影院室,建筑尺寸10.60m*9.50m*4.5m(長*寬*高),面積100.70m2。
用戶需求的基本描述:
客戶為中國有名的成功企業家,希望在私人空間里滿足家庭聚會娛樂,電影欣賞,貴賓接待等。同時每個功能都必須達到世界頂級水準。
所用器材列表
信號源設備:
OPPO BDP-105D 藍光播放機1臺
視頻系統設備:
DP M-Vsion Cine400-3D投影機
HARKNESS 220寸16:9透聲幕
還音系統設備:
Auro-3D Mensa超級環繞聲處理器
TANNOY DC12i :6只
TANNOY DC8i :22只
TANNOY DS15i sub:4只
LAB 16:4 :7臺
LAB FP3400:2臺
智能系統:
AMX NI3200中央控制系統 1套
ROKO 智能化燈控系統 1套
構建過程、聲學和光學處理及特別設計:
設計當初,客戶一直糾結于設計哪種沉浸式音效,現影音界有Dolby Atmos,DTS-X,AURO 3D 3種沉浸式音效標準,相比起采用 “Object Base” 方式實現包圍感的 Dolby Atmos來說, Auro-3D 的揚聲器布局與 DolbyAtmos 有所不同, 它不像 Dolby Atmos 那樣僅僅通過增加頂部的兩排揚聲器來描述聲音的高度, 而是在下層和頂層之間多加一層揚聲器布局來描述, 從而得到三層式揚聲器布局來描繪立體空間感,Auro-3D以傳統的 “ChannelBase”方式來實現。現市場上大量的5.1,7.1聲道的藍光影片可以通過Auro-3D環繞聲處理器進行上混處理,將電影中的環繞聲音軌提升至Auro-3D音效輸出,從使用方角度考慮這是最大的亮點,Dolby Atmos 和 DTS:X 需要在大房間且揚聲器數量越多的情況下才能發揮出它的音效優勢,同時需要有該音頻解碼格式的影片支持。所以最后客戶選擇了AURO 3D沉浸式音效系統。



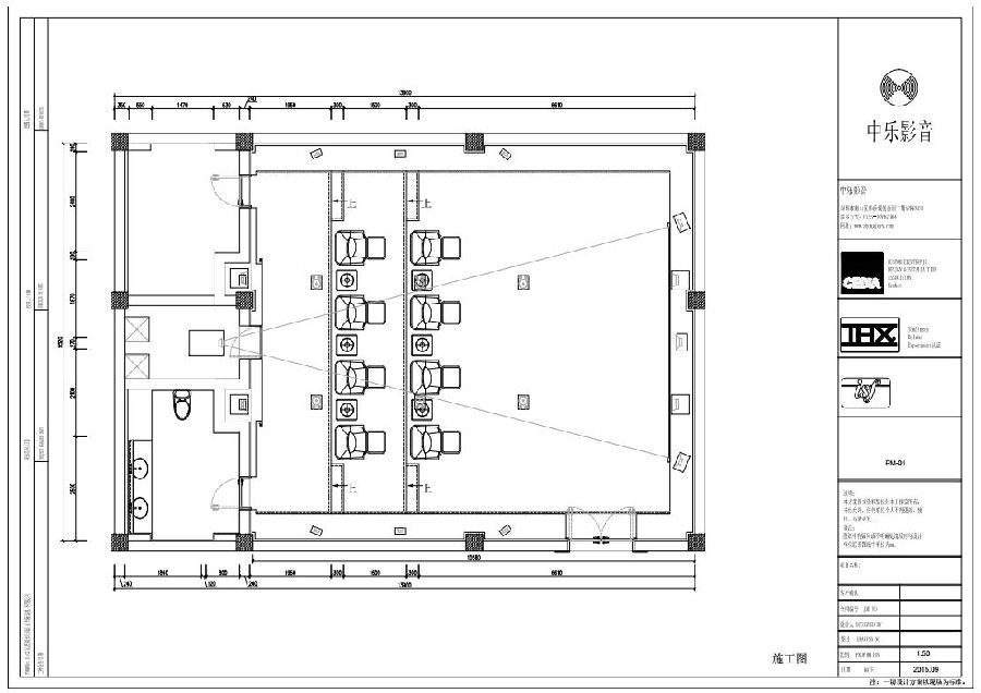
(平面圖)
聲學設計:由于視聽室空間比較大,整體系統為32通道,聲學設計為強吸音處理。
美學設計:專業,科技,現代




最終業主對這個項目的設計,實施,調試和移交整個過程高度稱贊,音視頻效果非常滿意,音效完全可以媲美Imax影院。中樂影音憑借多年來承接私家影院、私人影音娛樂館、多功能視聽室等方面工程所積累的成功經驗,使中樂影音日臻專業和完美,在客戶中和行業內都積累了很高的口碑,專業水準和設計制作能力享譽業界。
